トイレ 間取り 寸法

トイレ シニアが快適に暮らすための間取りのヒント 間取りのヒント すむすむ Panasonic

トイレ空間プラン 2 3歳児クラス トイレ空間プランのご提案 学校 幼児施設 パブリック向け商品 商品を選ぶ Toto

バスルーム 洗面所 ハウスアップ

トイレの寸法完全ガイド 空間と便器の良いバランスとは 失敗しないリフォーム会社選びは リフォームガイド

快適すぎて出たくなくなる トイレのベストな広さを検証してみる 大阪京都神戸でデザイン住宅 注文住宅ならコンフォート建築設計工房

自分で間取りを考える 第7回 トイレの計画 設計士が趣味で間取りを語るブログ
この壁の大きさは、間取りとして換算した中で作られるため、間取り上の大きさと実際の部屋の大きさには違いが生まれます。 ・間取りと実際の大きさの違い → ・広さの単位の換算 1帖(畳)=180cm × 90cm =162㎡.

トイレ 間取り 寸法. トイレの間取りで参考にした、失敗 成功 後悔した事 口コミ トイレは家族みんなが毎日使う空間です。 なるべく快適さや清潔さが保たれるような空間が望ましいです。. このピンは、tetoさんが見つけました。あなたも で自分だけのピンを見つけて保存しましょう!. 00年の会社設立以来、住宅会社のマッチングサービスで2100件以上の実績。家づくりポータルサイト「まるわかり注文住宅」の運営、住宅関連書籍の出版(最新刊「良い間取り 悪い間取り ~プロだけが知っている心地よい 住まいのつくりかた/エクスナレッジ刊」等、全11冊)も手掛ける。.
このピンは、tetoさんが見つけました。あなたも で自分だけのピンを見つけて保存しましょう!. トイレの過ごしやすさは間取りに大きく影響されます。 狭すぎると単純に使用しにくいですし、あまりに広すぎても落ち着かないと感じるでしょう。 ここでは住宅形態ごとの一般的な広さと最適なトイレの寸法を紹介しています。 リフォームをお考えの際はぜひ参考にしてみてください。. 間取り・寸法 トイレの間取りで失敗!後悔だらけのトイレ位置5選 間取り・寸法 172 おすすめ!ベッドの置き方から考える寝室の大きさ 間取り・寸法 その室内ドアを選んで大丈夫?室内建具の種類と寸法の話 間取り・寸法.
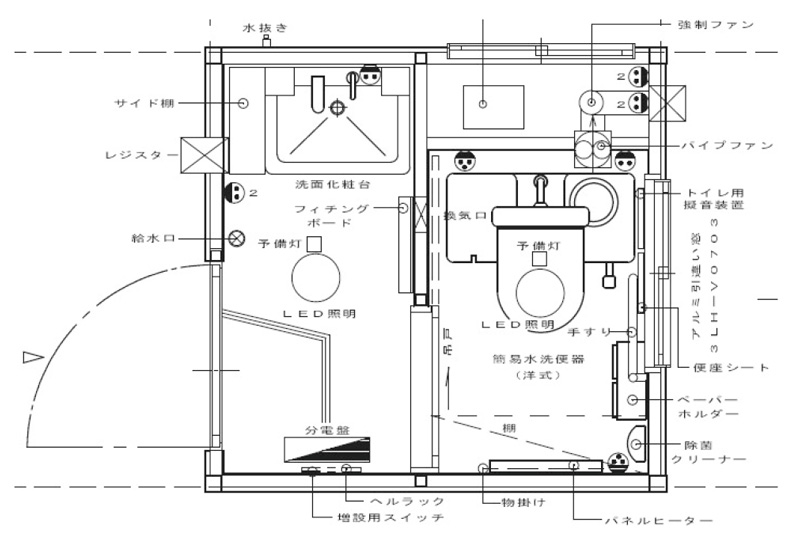
外形寸法:W1,117mm D1,117mm H2,485mm 特徴 使う人の身になり、その快適さを追求しました。室内空間を最大限に活用したゆったりタイプです。 簡易水洗トイレなので、衛生的にも最適です。 特徴 身障者の立場で作られた身障者のトイレです. 間取り・寸法 トイレの間取りで失敗!後悔だらけのトイレ位置5選 間取り・寸法 172 おすすめ!ベッドの置き方から考える寝室の大きさ 間取り・寸法 その室内ドアを選んで大丈夫?室内建具の種類と寸法の話 間取り・寸法. トイレはどこがいい? まず、あなたの家とトイレの関係性はどうなのか? ってことがキモになります。 風水から見るいい位置もありますが、 自分にとって使いやすい位置もありますし、 お客さん中心に使いやすい位置もあります。 人によって、いいトイレの位置は違うんです。.
トイレのベストな広さを検証してみる 『人生で大事なことは好きな仕事と、ウォシュレットの水圧。』ごきげんようトイレット今浦だ。 さて、今日は快適なトイレの広さを検証していく。 トイレといえば、 日本が世界イチィィィィ!!!!.

インテリア建材 室内ドア トイレドアのcadデータ一覧 Ykk Ap株式会社
仮設現場トイレの販売 レンタルは東京ハウジングが低価格でご提案

オフィス トイレ 図面 Khabarplanet Com

これが しっくりくるトイレの広さ ドアの付け方や配置でも変わる心地良い寸法

階段下トイレ で圧迫感なく使える高さを知りたい 失敗しない間取り相談 新築 リフォーム 間取りアドバイザー 坂口亜希子

間取り図の見方や自分で間取り図を作成するコツを知って 理想の家づくり 住まいのお役立ち記事

トラストnews アーカイブ ページ 148 株式会社トラストホーム

トイレの寸法完全ガイド 空間と便器の良いバランスとは 失敗しないリフォーム会社選びは リフォームガイド

Web内覧 1階トイレ Pontaとpomkoの新築ブログ

トイレの間取り 住宅と建築と設計の話

トイレ の記事一覧 図面屋 Com 店舗設計詳細図 虎の巻

3点ユニットのバス トイレを別々に分離する費用 リフォーム費用の手引き

パイプスペースをどこに設置するべきか I Smartで家族みんなの快適なおうち

洗面室 脱衣所 トイレを使いやすくするために 住宅設計のプロが教える5つのコツ Wellnest Home

車いすでの動作スペースを十分に確保したプラン トイレ 寸法 車いす 介護 トイレ

Web内覧会 第10回 1 5帖の一階トイレ タンクありを選んだ理由とは I Smart雑記帳

株式会社スイドウセツビコム Toto 隅付形便器 壁排水 手洗付 Cs140p S670bu

トイレ空間プラン 4 5歳児クラス トイレ空間プランのご提案 学校 幼児施設 パブリック向け商品 商品を選ぶ Toto

仮設トイレ 仮設ハウス 仮設資材はユーミックス

浴室 洗面室 トイレ 間取りづくりの手引き すむすむ Panasonic

7 トイレの必要寸法 住宅以外

1帖トイレ バリアフリーレイアウト考 いいひブログ いいひ住まいの設計舎

トイレと洗面所のレイアウト 間取りプランニング 設計 方法 暮らしニスタ

トイレの広さ1畳だと狭い セキスイハイム注文住宅トイレの寸法と配置 halの 失敗しない理想の家づくり

浴室 洗面室 トイレ 間取りづくりの手引き すむすむ Panasonic

あともうちょっと広ければ を解決 間取り455 プラス設計術 間取りセカンドオピニオン コレタテ

Excelで間取りの作り方 完成版ダウンロード 5 5 こだわりローコスト北欧風住宅新築ブログ 2nd

新しくしたのに狭くなる トイレリノベの注意点 Sumai 日刊住まい

トイレの間取りと収納と照明 住宅と建築と設計の話

3点ユニットのバス トイレを別々に分離する費用 リフォーム費用の手引き

ホームズ 間取り図の思わぬ落とし穴 部屋探しと注意すべき間取り図の見方 住まいのお役立ち情報

住宅でのトイレ寸法を考える Aoki建設 Note

階段下トイレ で圧迫感なく使える高さを知りたい 階段下 間取り トイレ 寸法

製品詳細 Tb 70 55 127 トイレの設計 施工 トーヨーマテラン

給排水配管工事をしない手洗いカウンターの新設リフォームは住まいるパートナーへ 朝霞市 和光市 新座市 志木市 練馬区 板橋区 西東京市

住みやすい家を考える前に知らなければいけない 最低限必要な部屋と広さ Design Yaamadesign Yaama

自分で間取りを考える 第7回 トイレの計画 設計士が趣味で間取りを語るブログ

1kとは ワンルームや1dkと何が違うの 間取りやレイアウトを見ながら解説 スマイティ

安らぎのトイレ空間は戸を開ける 引くところから トイレの扉で悩んでほしい 住宅設計 間取り All About

トイレ空間プラン 中学 高校 トイレ空間プランのご提案 学校 幼児施設 パブリック向け商品 商品を選ぶ Toto

トイレと洗面所のレイアウト 間取りプランニング 設計 方法 暮らしニスタ

汲取小便便槽付 Aug U 37n 仮設トイレ 旭ハウス工業株式会社 仮設トイレ 仮設資材のレンタル 販売

平面図で階段の表示の一部を省略したいのですが 初心者のためのインテリア3d教室

仮設トイレリース 現場トイレレンタルは東京プレハブネットにお任せ下さい 図面

トイレ 間取り 2 Jpg 間取り トイレ 寸法 設計図面

2 トイレの必要寸法 木造住宅のケース

車椅子対応トイレ介護用リフォーム 寝室から直接入れるトイレ 有 勝建ホーム 施工事例

快適空間トイレ 株式会社 共成レンテム

快適トイレ 水洗式 仮設トイレ 旭ハウス工業株式会社 仮設トイレ 仮設資材のレンタル 販売

階段下トイレの天井高について 長文ですみません 地元工務店で 現在 一戸建て 教えて Goo

トイレの寸法ってどの程度 基本の広さや最適なサイズは 定額リフォームのリノコ

トイレ手洗いキャビネット 間取りと位置と寸法の関係 Wailea ワイレア Wailea ワイレア Design More Freely And More Flexibly もっと自由にフレキシブルに Waileaは水廻り設備にとどまらず 住設機器 家具 アクセサリーから雑貨にいたる小物まで

糖尿病内科クリニック医院診療所の間取りプラン平面図 北島建築設計事務所

間取り図の見方や自分で間取り図を作成するコツを知って 理想の家づくり 住まいのお役立ち記事
パナソニック トイレ手洗 ラウンドタイプ キャビネット Gha8fc2 S アラウーノ 左右兼用 壁付 Gha8fc2sss じゅうせつひるず Com 通販 Yahoo ショッピング

間取図の記号 図面集の凡例 解説サイト 間取職工所

トイレ改修工事 パート2 3 リフォーム リノベーション 千葉市 船橋 つくば

トイレの基本的な寸法と介護に必要な広さ

2 トイレの必要寸法 木造住宅のケース

仮設トイレ 仮設ハウス 仮設資材はユーミックス

トイレ まるわかり注文住宅
仮設現場トイレの販売 レンタルは東京ハウジングが低価格でご提案

階段下トイレ で圧迫感なく使える高さを知りたい 階段下 間取り トイレ 寸法

18 号 トイレユニット Astamuse

トイレ手洗いキャビネット 間取りと位置と寸法の関係 Wailea ワイレア Wailea ワイレア Design More Freely And More Flexibly もっと自由にフレキシブルに Waileaは水廻り設備にとどまらず 住設機器 家具 アクセサリーから雑貨にいたる小物まで

トイレづくりのポイント 使いやすさに対する配慮

トイレの広さは0 75坪必要 新築のトイレの広さを検討しよう 注文住宅を年収400万で購入するイロハ

建築図面と間取り図面の違い 暮らしっく不動産
Lixil Inax 浴槽 洗面 便器 シャワートイレ付 付ユニットバスルーム 1216サイズ Blcw 1216lbe Blcw1216lbe スイスイマート 通販 Yahoo ショッピング

トイレの寸法完全ガイド 空間と便器の良いバランスとは 失敗しないリフォーム会社選びは リフォームガイド

トイレの窓位置とかp Sのこととか 飛んでけ I Smart

注文住宅の間取りを考える上で覚えておきたい単位 モジュール と 各部の寸法 Takumiの住宅 建築相談所

サザエさん 磯野家の間取り図で一番問題なのは トイレ Hocolife 子供と暮らす家づくり 快適生活

自分で間取りを考える 第7回 トイレの計画 設計士が趣味で間取りを語るブログ

トイレの寸法完全ガイド 空間と便器の良いバランスとは 失敗しないリフォーム会社選びは リフォームガイド

トイレの広さを解説 一軒家における標準サイズは 0 5坪 169cm 78cm です いえりゅうの注文住宅

トイレの最適な広さはどのくらい 寸法を決める際のポイント Lixil Square

トラストnews アーカイブ ページ 148 株式会社トラストホーム

トイレの寸法ってどの程度 基本の広さや最適なサイズは 定額リフォームのリノコ

トイレ空間の大きさはどのくらいがベスト 理想のトイレを検証 有限会社永野工務店 和泉市でリフォームやリノベーション おしゃれな注文住宅の設計施工

公園 トイレ 寸法 Htfyl

トイレ手洗いキャビネット 間取りと位置と寸法の関係 Wailea ワイレア Wailea ワイレア Design More Freely And More Flexibly もっと自由にフレキシブルに Waileaは水廻り設備にとどまらず 住設機器 家具 アクセサリーから雑貨にいたる小物まで

パウダールームのカウンターの作図事例 図面屋 Com 店舗設計詳細図 虎の巻

タンクレストイレの注意点 アラウーノとトイレ壁の空間が空くのは換気扇の設置位置の問題 一条工務店で建てたまぼこのきろく

トイレの室内空間を広げることはできますか リフォーム創研があなたの暮らしを快適にします

トイレのスペースについて 介護用品の通販 販売店 品揃え日本最大級 快適空間スクリオ

歯科医院移転内装工事の受付カウンターの形と寸法 北島建築設計事務所

トイレの様々な寸法を知って 快適トイレを作りましょう くらしのマーケットマガジン

マイバイオトイレ 正和電工株式会社

トイレの寸法完全ガイド 空間と便器の良いバランスとは 失敗しないリフォーム会社選びは リフォームガイド

1 トイレのリノベーション リフォーム 幼児にも優しい幅110cmのトイレ ビルに住む

階段下トイレ で圧迫感なく使える高さを知りたい 失敗しない間取り相談 新築 リフォーム 間取りアドバイザー 坂口亜希子

トイレ設備プラン コンビウィズ施設用育児製品